Начало
Имоти
Ексклузивни Имоти
Всички Имоти
Проекти
Екип
Кариера
Нашият Екип
Контакти
Вход
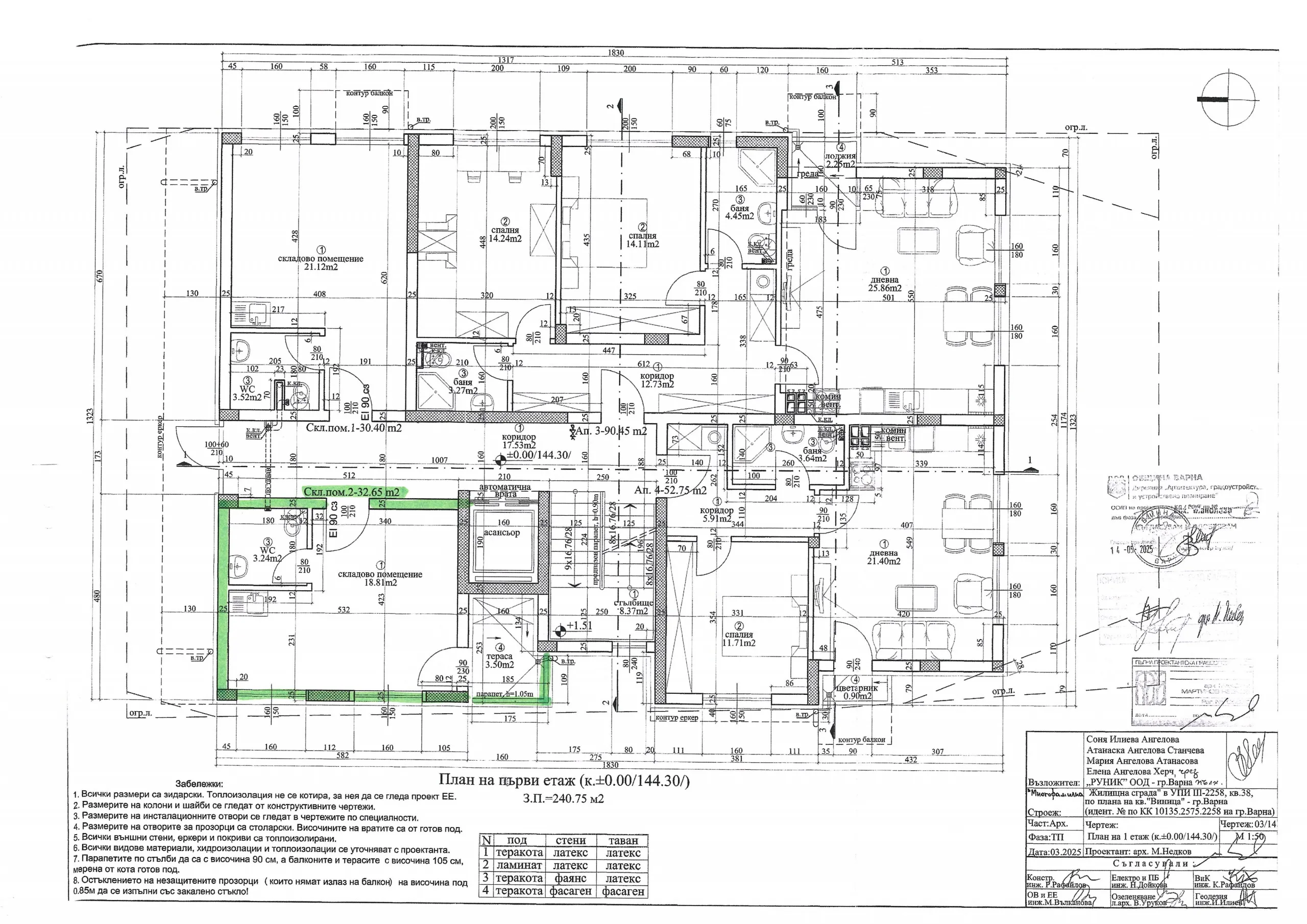
Детайли за етажа на
Проекта
Начало
" Жилищна сграда в центъра на кв. Виница"
Етаж 1
Имоти от
етажа
€59 852
Складово помещение 2 в новострояща се сграда в центъра на кв. Виница
Варна, Виница, ул. "Черно море" 4
2025
38
1
Кабинет
€115 416
Двустаен ап. №4 ет.1 в новострояща се сграда в кв. Виница
Варна, Виница, ул. "Черно море" 4
Двустаен апартамент
Тухла
2025
65
1