Жилищна сграда в центъра на кв. Виница, Двустаен ап. №4 ет.1 в новострояща се сграда в кв. Виница

ID: 2239
€115 416
Варна, Виница
thumb

Детайли за имота

  •  Вид на имота: Двустаен апартамент
  •  Площ: 65
  •  Брой спални: 2
  •  Асансьор: да
  •  Брой баня+тоалет: 1
  •  Тип строителство: Тухла
  •  Етаж: 1
  •  Етажност: 5
  •  Година на завършване: 2026
  •  Година на строителство: 2025
  •  Състояние на имота: БДС
  •  Брой стаи: 2
  •  Етап на строителство: Разрешение за строеж

За имота

SPROPERTIES предлага апартаменти в новострояща се жилищна сграда в кв. Виница

Сградата е с издадено разрешително за строеж, изпълнява се отдоказан строител с реализирани проектии предлага удобство, сигурност и комфорт за бъдещите си собственици.

-Гъвкави схеми на плащане
-Отлична локация – тиха и спокойна среда с удобен достъп до центъра на града и морето
-Съвременен дизайн и функционални разпределения

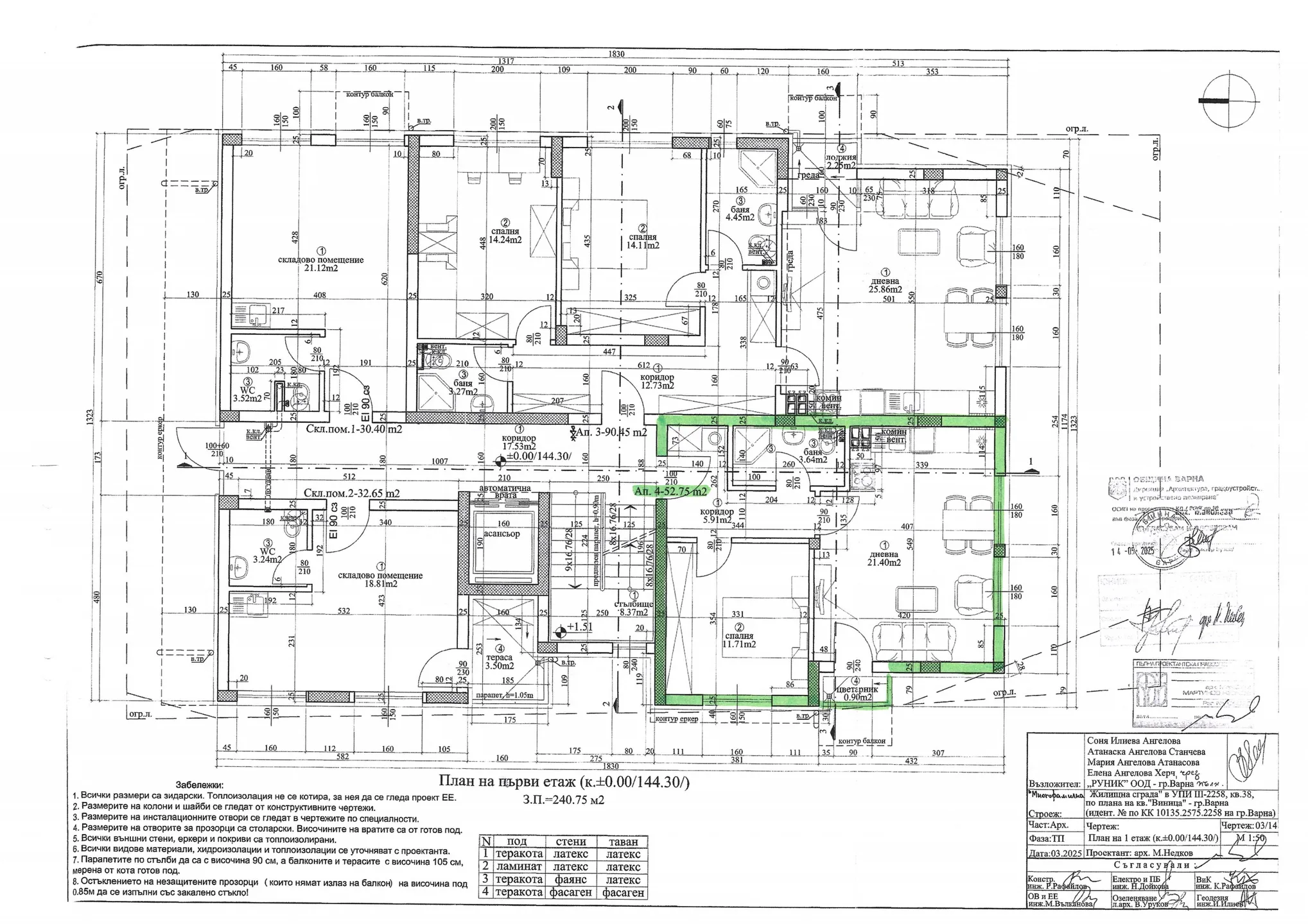
Апартаментът, който разглеждате, е собща квадратура от 64,12 кв.м., подходящ както за собствено ползване, така и за инвестиция.

Разпределение на имота е както следва: 
-Дневна 21.41 кв.м.
-Спалня 11.71 кв.м.
-Коридор 5.91 кв.м.
-Баня 3.64 кв.м.
-Мазе 3.74 кв.мя
-Цветарник 0.90 кв.м.

За повече информация и огледи
Свържете се с мен на посочения телефон.

Удобства на района

  •  Магазини: Да
  •  Аптека: Да
  •  Училище: Да
  •  Детска градина: Да
  •  Градски транспорт: Да