thumb
thumb

Детайли за имота

  •  Вид на имота: Двустаен апартамент
  •  Площ: 85
  •  Брой спални: 1
  •  Брой стаи: 2
  •  Видеонаблюдение: да
  •  Етап на строителство: Проект
  •  Тип строителство: Тухла
  •  Етаж: 3
  •  Брой бани: 1
  •  Асансьор: да
  •  Контролиран достъп: да
  •  Година на строителство: 2025
  •  Състояние на имота: БДС
  •  Етажност: 7
  •  Охрана: да
  •  Година на завършване: 2028

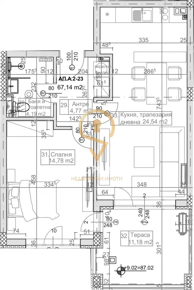
За имота

S PROPERTIES представя двустаен апартамент в нов жилищен комплекс, съчетаващ морска панорама, спокойствие и лукс.

Жилището се състои от дневна с кухня 24кв.м, спалня 14кв.м, тераса и баня с тоалет.

✅ПЛОЩ 85 кв.м

✅ИЗЛОЖЕНИЕ ЮГОИЗТОК

✅ФУНКЦИОНАЛНО РАЗПРЕДЕЛЕНИЕ

✅ГЪВКАВИ СХЕМИ НА ПЛАЩАНЕ

Защо да изберете жилище в тази сграда? 

  • Модерен дизайн и качествено строителство.
  • Уютна среда с изобилие от зеленина.
  • Разнообразие от апартаменти за всеки тип семейство.
  • Удобна локация с лесен достъп до града.
  • Комплексът е разположен над к.к. Слънчев ден, в непосредствена близост до автобусни спирки, магазини и алеи за разходка

Удобства на района

  •  Градски транспорт: Да
  •  Панорама: Да