Медицински кабинет в Св. Константин и Елена

ID: 1824
€230 000
Варна, област, к.к. Св.Св. Константин и Елена
thumb
thumb
thumb
thumb
thumb
thumb
thumb
thumb

Детайли за имота

  •  Етаж: 1
  •  Състояние на имота: Необзаведен
  •  Етажност: 6
  •  Година на строителство: 2025
  •  Площ: 87

За имота

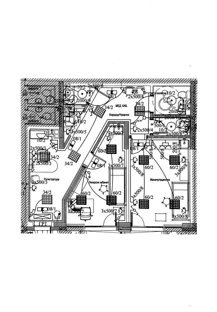
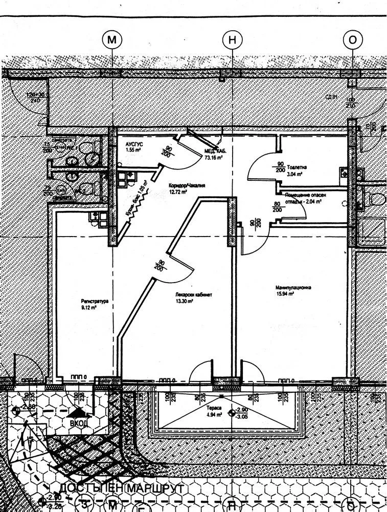
SProperties продава ексклузивно медицински кабинет с манипулационна в Св. Константин и Елена.

Въз основа на изготвен проект помещението е разпределено по следния начин- регистратура, чакалня, лекарски кабинет, манипулационна, помещение за опасен отпадък, АУСГУС, тоалетна и кухненски бокс. Пред кабинета има обособена площ където може да се сложат маса и столове!

Имота се намира на партерно ниво, в новопостроена сграда, с отлична визия, двор и общи части, пред акт 16. Поради юго-източното си изложение всички помещения са много слънчеви и светли! Има самостоятелен вход към обекта, както и вход от общите части на сградата!

Напълно подходящ е за всякакви медицински цели! Предвид локацията и статута на този имот, може да се каже, че е изключителна инвестиция, с изключителен потенциал!

За огледи можем да се разберем и организираме лесно и бързо!