Начало
Имоти
Ексклузивни Имоти
Всички Имоти
Проекти
Екип
Кариера
Нашият Екип
Контакти
Вход
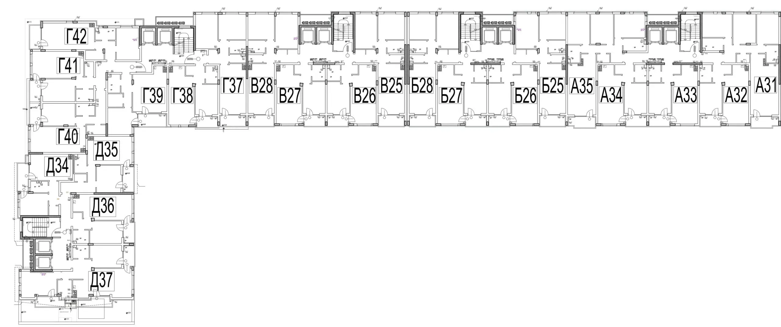
Детайли за етажа на
Проекта
Начало
"Жилищна сграда ж.к Кайсиева Градина "
Етаж 8
Имоти от
етажа
€102 500
Д-36
Варна, Кайсиева Градина, ул. Цар Освободител
Двустаен апартамент
Тухла
2026
69
8
€103 000
Д-35
Варна, Кайсиева Градина, ул. Цар Освободител
Двустаен апартамент
Тухла
2026
75
8